Rollstuhlgerechte, helle Gewerbeeinheit/Praxisräume im EG - flexibel nutzbar

Clara-Zetkin-Straße 1 | 07973 Greiz - Pohlitz
Kosten
Kaltmiete:
900.00 €
Nebenkosten:
370.00 €
Kaution:
1200.00 €
Gesamtmiete:
1270.00 €
Allgemeine Infos
Wohnungs-Nr.:
001-0053-007
Etage:
EG
Anzahl der Zimmer:
5
Wohnfläche:
128.70 m²
Frei ab:
01.05.2026
Objektinformationen
Balkon:
Aufzug:
Dusche:
Wanne:
Bad mit Fenster:
Betreutes Wohnen:
Energieausweisdaten
Energieausweisart:
Verbrauchsausweis
Energieverbrauch:
117.20 kWh/(m²*a)
Energieklasse:
D
Energieträger:
Fernwärme
Gebäudebaujahr:
1977
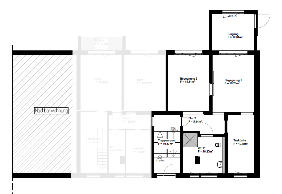
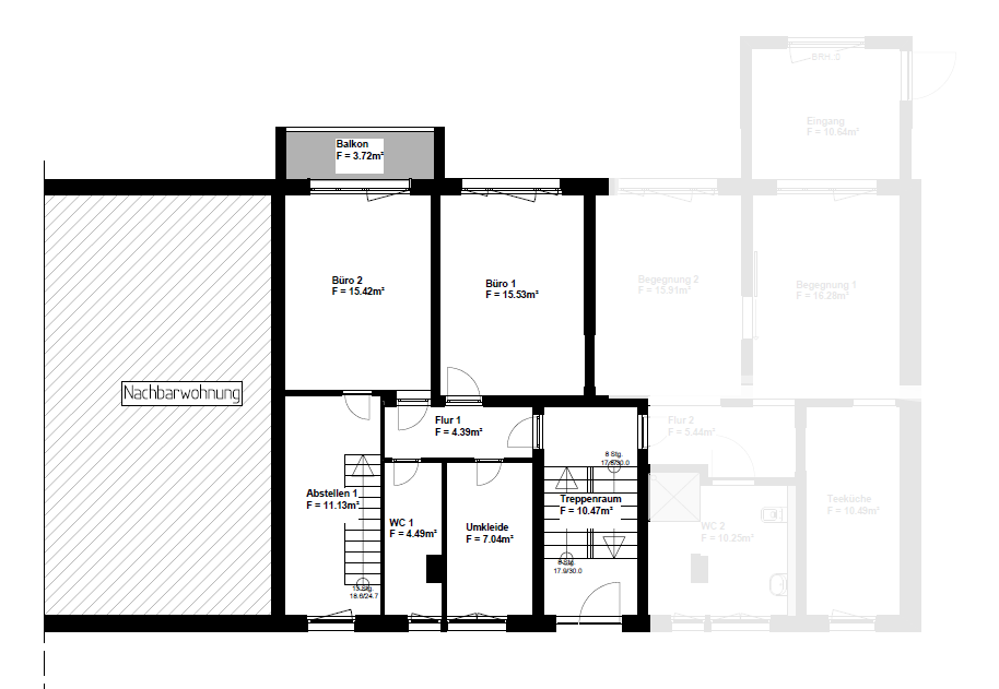
Objektbeschreibung
Zur Vermietung steht eine großzügige und vielseitig nutzbare Gewerbeeinheit im Erdgeschoss eines gepflegten Mehrfamilienhauses in der Clara-Zetkin-Straße 1 in 07973 Greiz.

Die Einheit verfügt über eine Gesamtfläche von ca. 128,7 m² und entstand durch die Zusammenlegung von zwei ehemaligen Wohnungen. Zuletzt wurde sie durch die Volkssolidarität als Büro genutzt.

Dank der durchdachten Raumaufteilung mit insgesamt vier Räumen bietet die Fläche ideale Voraussetzungen für unterschiedlichste Nutzungskonzepte, z. B. als:
- Büro oder Kanzlei
- Praxis oder Therapieeinrichtung
- Schulungs- oder Sozialräume
- Dienstleistungsgewerbe

Ein besonderes Highlight ist die Barrierefreiheit:
Der Zugang ist rollstuhlgerecht über einen lichtdurchfluteten Anbau auf der Gebäuderückseite für mobilitätseingeschränkte Personen möglich.
Ausstattung
- ca. 128,7 m² Nutzfläche
- 4 Räume (zzgl. zusätzlichem Abstellraum innerhalb der Einheit mit direktem Kellerzugang)
- 2 Bäder mit Dusche
- davon ein großzügiges, rollstuhlgerechtes Bad
- Balkon vorhanden
- Barrierefreier Zugang
- Kellerabteil
- zusätzlicher Abstellraum
- Gemeinschaftskeller (z. B. für Fahrräder)
- Trockenraum auf dem Dachboden
- Fernwärmeheizung
- Energieverbrauch: 117,2 kWh, Energieklasse D
- Baujahr 1977, Objekt saniert
Lagebeschreibung
Die Immobilie befindet sich in zentraler Lage von Greiz (Clara-Zetkin-Straße 1) in einem gewachsenen Wohngebiet.

In unmittelbarer Umgebung befinden sich zahlreiche Einrichtungen des täglichen Bedarfs, darunter Supermärkte, Bäckereien, Apotheken sowie weitere Dienstleister. Auch die Anbindung an den öffentlichen Nahverkehr ist gegeben.

Kostenfreie Parkmöglichkeiten stehen im direkten Umfeld des Objekts zur Verfügung.
Sonstiges
Die Einheit eignet sich ideal für Gewerbetreibende, die Wert auf eine barrierefreie, gut erreichbare und flexibel nutzbare Fläche legen.

Gern stellen wir Ihnen die Immobilie im Rahmen eines Besichtigungstermins persönlich vor.

Hinweis:
Optional kann die Einheit bei Bedarf wieder in zwei separate Wohnungen umgebaut werden.